发布日期:2025-12-14 14:02 点击次数:61
红墙灰瓦的院落里,站立着一棵600多年的参天古槐,耳畔鸟鸣啾啾。名为“神乐槐”的古树,见证了明清君王祭天祈谷的虔敬,也在历史更替中泣诉一段战斗弱点。
天坛,是全国现有限度最大、保存最完好意思的古代皇家祭天建筑群,每年招引无数中外旅客前去参不雅。“神乐槐”便滋长于天坛公园西南角的神乐署——明清时间培养祭祀乐舞生的神色。

图为天坛神乐署景区门口。新华社记者 魏梦佳 摄
光彩清静的祭祀文化和礼乐文雅令东谈主屏气凝神,却鲜有东谈主知,80多年前,这里还曾藏着一座“细菌工场”,对中国寰球犯下滔天弱点。
宛平城炮火未歇,天坛已被虎狼觊觎。1937年8月,侵华日军占领神乐署,天坛从此遇到前所未有的劫难。
神乐署内北侧,一面斑驳灰墙上,嵌有两块汉白玉碑,碑上刻有“侵华日军细菌军队古迹”的字样。“‘九·一八’事变后,日本骚动军在中国建立了大限度的细菌军队,总东谈主数达两万东谈主……”碑文上写谈。

图为天坛神乐署景区内“侵华日军细菌军队古迹”碑。新华社记者 魏梦佳 摄
1937年,侵华日军过问位于天坛神乐署的中央防疫处北平制造所“测验”,了解该处的按序开导、器用器械、实验室以及束缚生物制剂的才调。1940年,经日本天皇大呼,北支那防疫给水部庄重成立,代号甲第1855军队(简称1855军队),总部就设在天坛神乐署——这是日军在华北地区建立的细菌战军队。
披着野战给水和传染病谢绝的外套,实则奥密接济细菌,对华开展细菌战。天坛公园红色磨真金不怕火员梁梓昱先容,1855军队研制和坐蓐鼠疫、霍乱、伤寒、痢疾、黑热病、疟疾等致命细菌和原虫,后再将其研制成细菌火器,毒害中国匹夫。
“侵华日军731军队队长石井四郎,是细菌战的推行者、组织者和实施者。字据一些贵寓发现,1855军队好多主干成员皆有在731军队的入伍资历。”梁梓昱说。

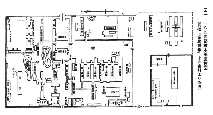
图为侵华日军细菌军队甲第1855军队本部按序图(贵寓相片)。新华社发
何以选择天坛神乐署作为“细菌工场”?
梁梓昱解说,这里原为中央防疫处,日军在这不仅可使用现成的按序开导、器材和器用,且位置掩饰,便于奥密开展细菌实验等活动。
北京市档案学会副通知长张斌先容,1855军队在北京设有本部和下属三课,第一课(病理实验)、第二课(制造菌苗)、第三课(细菌火器究诘所),而其中的本部考取二课就在天坛神乐署。神乐署北侧被占领后平直用于多数坐蓐多样细菌战剂,“他们还挖了地下冷库,非凡用于储存菌苗”。
北京市档案馆馆藏的《北京地区防疫委员会防疫课霍乱谢绝责任答覆信(1943年)》中,一份《(民国)三十二年六至十月患者路倒归天者消毒责任统计表》败露:以前6月和7月,北京独一3例霍乱感染病例,无归天答复;8月,霍乱病例鸠合暴发;端正10月底,发现霍乱“患者264例,归天1780例,路倒92例”。

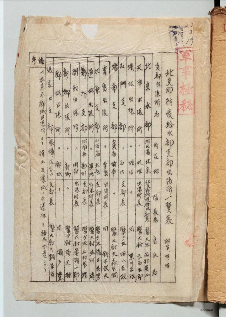
日本细菌战究诘大家、滋贺医科大学名誉磨真金不怕火西山胜夫近日向新华社记者展示了一份他新发现的《北支那防疫给水部甲第一八五五军队留守名簿》的文档扫描件。这是首页《北支那防疫给水部支部出张所一览表》。新华社发
“日军为研制杀东谈主细菌火器,竟用中国东谈主进行活体实验,多数中国被俘士兵和子民被手脚念实验对象惨遭杀害。”神乐署碑文上写谈。“为狡饰弱点,他们还有一套颠倒称谓,如把老鼠称为‘饼’,把跳蚤称为‘粟’,把活体实验的东谈主称为‘猿’。”梁梓昱说。
1945年8月15日,日本衰落深信。梁梓昱说,音问一传来,1855军队就遑急捐躯细菌军队的贵寓,放置罪证,“任意责任捏续了整整三天三夜,仅实验用的跳蚤,就拉走了一万多桶”。战斗刚完满,日军就斥逐了这支军队,并妄图把它从历史中抹去。
罪证不错放置,历史不会湮灭。
新中国成立后,天坛神乐署逐渐取得竖立。2012年,被列入第一批北京市爱国见解训诫基地。
尽管1855军队违规的历史遗迹难寻,梁梓昱和共事们多年来仍在接续整理相关那段历史的贵寓,向参不雅者论说日军在此犯下的滔天弱点。端正现在,相关磨真金不怕火已达万余场。
“侵华日军的731军队大众皆闇练,1855军队你们知谈吗?”磨真金不怕火前,梁梓昱总会这么问不雅众。
“大众遍及不知谈1855军队,听了磨真金不怕火后皆很战栗。”梁梓昱说。

图为天坛神乐署景区内的“神乐槐”。新华社记者 魏梦佳 摄
在曾被侵华日军用于办公神色的神乐署院落,如今,“神乐槐”照旧挺拔站立。
“侵华日军细菌战给中国寰球形成了无法灭绝的艰深倒霉,战斗弱点无法抹去,惨痛历史进犯忘却,咱们更应爱戴顽固谨慎的和平。”张斌说。
记者:魏梦佳、杨淑君